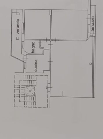
In quartiere in fase di riqualificazione con lavori in corso per il rifacimento delle due piazze limitrofe, in condominio recente e con ascensore, proponiamo un immobile posto ad un piano alto molto luminoso ed in ottime condizioni interne. L’immobile offre un ingresso direttamente in un salone doppio con ampie finestre che favoriscono il penetrare di luce naturale, cucina abitabile con accesso ad un ampio balcone verandato, disimpegno, due camere da letto e bagno con finestra, impianto di riscaldamento autonomo, la spesa di condominio ammonta ad euro 90 mensili comprensivo del consumo di acqua salvo conguaglio.



































