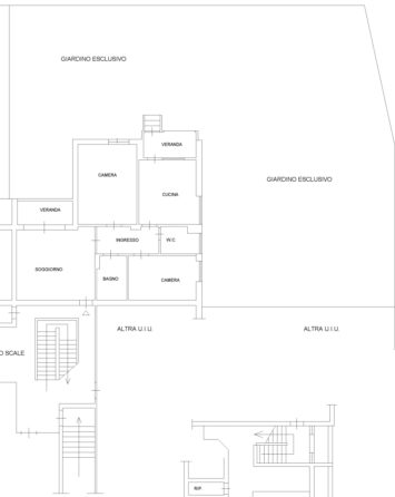
In strada interna, in contesto tranquillo e silenzioso, proponiamo questo splendido appartamento, posto ad un piano terreno rialzato con ingresso indipendente da un ampio giardino privato di circa 300mq, esposto a sud/est. L’immobile è stato oggetto di recente e totale ristrutturazione, l’ampiezza del giardino esclusivo favorisce un’estensione naturale degli spazi abitativi, rendendo migliore la qualità della vita, il benessere psicofisico e aumentando il valore e le potenzialità dell’immobile. Si compone da ingresso in soggiorno con tensotruttura, un disimpegno, cucina abitabile con veranda e scesa al giardino, due camere da letto, doppi servizi, cantina, impianto di riscaldamento autonomo, climatizzato, basse spese di condominio, ottimo oggetto dalla grande potenzialità, possibilità di parcheggio auto all’interno del giardino privato.





























